1. Immobilier
  2. Achat neuf
  3. Achat Maison neuf
  4. Achat Maison neuf BIGANOS (33380)

Maison à vendre 4 pièces - 85,30 m2 BIGANOS - 33

Ref : 10867

289 200 €

  • Honoraires charge vendeur
maison à vendre - 4 pièces - 85.3 m2 - BIGANOS - 33 - AQUITAINE - Century 21 Duprat & Associés
maison à vendre - 4 pièces - 85.3 m2 - BIGANOS - 33 - AQUITAINE - Century 21 Duprat & Associés
maison à vendre - 4 pièces - 85.3 m2 - BIGANOS - 33 - AQUITAINE - Century 21 Duprat & Associés
maison à vendre - 4 pièces - 85.3 m2 - BIGANOS - 33 - AQUITAINE - Century 21 Duprat & Associés
Envoyer un message
Message
Envoyer ce bien à un ami

Description

[BIGANOS - MAISON INDIVIDUELLE A ETAGE NEUVE T4 - un séjour-cuisine au rez-de-chaussée - Jardin]

CENTURY 21 Duprat & Associés vous présente un programme de maisons individuelles situé au calme, le long d'une piste cyclable dans un cadre verdoyant.

Un projet qui allie confort moderne et respect de l'environnement.

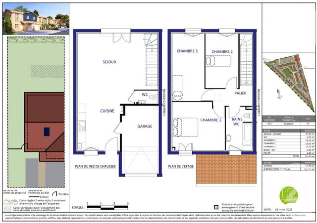
Maison neuve type T4 de 85,30 m² sur un terrain de 219 m² avec un garage de 13,50 m².

On entre dans un séjour - cuisine de 37,40 m², d'un WC de 1,70 m², puis à l'étage le palier de 4 m² dessert une 1ère chambre de 13,50 m², une 2ème chambre de 10,00m², une 3ème chambre de 12,50 m², 1 salle de bains avec WC de 6,20 m².

Le chauffage est individuel au gaz de ville. Vous bénéficiez de l'isolation aux normes RT 2012.

Un équipement spécial de panneaux photovoltaïques fournira un courant électrique d'appoint autoconsommé par le logement. c 6,20 m², 1 Palier de 4 m².


Le chauffage est individuel au gaz de ville. Vous bénéficiez de l'isolation aux normes RT 2012.

Un équipement spécial de panneaux photovoltaïques fournira un courant électrique d'appoint autoconsommé par le logement.

Au cœur de la région Nouvelle-Aquitaine, la commune de Biganos offre un cadre de vie exceptionnel, idéal
pour ceux qui cherchent à concilier nature, confort et accessibilité.

Avec une population en croissance continue, Biganos séduit de plus en plus de familles et de nouveaux arrivants.
À seulement quelques minutes du célèbre Bassin d'Arcachon,cette commune attire par ses paysages préservés et son dynamisme économique.

Proximité avec le Bassin d'Arcachon : Les amoureux de la nature et des activités nautiques trouveront ici un
véritable havre de paix.

La ville bénéficie de la proximité immédiate des plages et des forêts, offrant un cadre de vie idéal
pour les familles et les amateurs de plein air.

Une qualité de vie optimisée : Avec plus de 84 % de maisons individuelles, Biganos préserve son caractère
pavillonnaire tout en offrant des infrastructures modernes.

Les nombreuses pistes cyclables et espaces verts encouragent la mobilité douce et garantissent un environnement sain et agréable.

L'offre en services publics, de loisirs et de commerces fait de cette commune un lieu où il fait bon vivre.

Ce programme résidentiel propose des maisons, parfaitement adaptées aux besoins des familles et des investisseurs, avec des surfaces allant de 70 m² à 100 m², du T3 au T5.

Un projet qui reflète l'âme de Biganos : Inspiré des cabanes du port de Biganos, le design architectural des maisons mêle charme local et modernité.

Chaque maison, qu'elle soit de plain-pied ou à étage, s'intègre harmonieusement à l'environnement grâce à une architecture respectueuse et durable.

Les matériaux utilisés, ainsi que les bardages colorés, rappellent l'identité locale tout en offrant une esthétique contemporaine.

Un environnement pensé pour le bien-être : Les cheminements doux et les espaces verts répartis au sein
du projet offrent aux résidents un cadre de vie propice à la détente et aux activités en plein air.

L'aménagement a été conçu pour favoriser une vie communautaire apaisante, idéale pour les familles.

Vous recherchez une maison à la construction, c'est un cadre de vie
exceptionnel alliant modernité, confort et nature.

Ne manquez pas cette opportunité unique de faire partie d'un projet
immobilier d'envergure, parfaitement intégré à son environnement.

PRIX DIRECT PROMOTEUR

FRAIS DE NOTAIRE REDUIT à 2,5%

PRET A TAUX 0% pour les primo-accédants sous condition.

Contactez notre Responsable Vente de Neuf pour obtenir les tarifs et disponibilités de ce programme au 05.57.17.00.45

Retrouvez nos autres biens à vendre sur le Bassin d'Arcachon directement sur notre site www.century21addi.com

Localisation

Laissez-nous vos coordonnées pour obtenir la localisation

Envoyer

Afficher sur la carte :

Demander la localisation

Vue globale

  • Surface totale : 98,8 m2
  • Surface habitable : 85,3 m2
  • Surface terrain : 219 m2
  • Nombre de pièces : 4
    • Sejour cuisine (37,4 m2)
    • WC (1,7 m2)
    • Chambre 1 (13,5 m2)
    • Chambre 2 (10 m2)
    • Chambre 3 (12,5 m2)
    • Salle de bain/wc (6,2 m2)
    • Palier (4 m2)
    • Garage (13,5 m2)
    • Jardin (219 m2)

Équipements

Les plus

Jardin

Général

  • WC séparés
  • Chauffage : Individuel au gaz chaudiere à condensation gaz
  • Eau chaude : Chaudière gaz
  • Façade : Crépi
  • Double vitrage
  • Clôture
  • Isolation : Rt 2012

À savoir

  • Travaux à prévoir : peinture et cuisine
Bien proposé par Patricia burg EI, agent commercial (RSAC 531507648)

Envoyer à un ami

Envoyer

Envoyer un message :

Envoyer

Créer votre alerte

Rappel de vos critères de recherche :

Erreur dans les critères envoyés

Limite d'alertes atteinte

Cette alerte existe déjà

Cette alerte est déjà enregistrée pour cette adresse email. Vous continuerez à recevoir les biens correspondant à vos critères.

Une erreur est survenue

Merci de réessayer ultérieurement.

Votre alerte a été créée

Vous recevrez les biens correspondant à vos critères.

logo vente privées

48h

d’avance sur
le marché

Prenez un temps d’avance sur le marché en profitant gratuitement des Ventes Privées CENTURY 21

Si ce n’est déjà fait, allez compléter le profil de votre compte afin de pouvoir recevoir en avant-première des biens exclusifs, réservés à nos clients pendant les 48 premières heures suivant leur commercialisation.

Nos agences proposent régulièrement des biens comme celui que vous cherchez

Ne ratez pas une opportunité, on vous alerte en priorité !

Êtes-vous actuellement propriétaire de votre bien ?
Créer une alerte
Je souhaite être alerté
Voir les biens correspondants